Adjoining Jollity Suite
This a contemporary and kid-friendly joined hotel room. It will have designs and materials linking to Indiana and Ball State University. It will allow open space for free movement and extra space. Throughout the suite there will be a homey aesthetic since new environments can be intimating for kids. There will be extra closet space for toddler/infant furniture or necessities. Even though my hotel room is targeted at families, someone with a disability can access this room. My goal is to incorporate Toys/Activities for the kids, small kitchenette with all the necessary appliances, private office area, wallpaper that represent Ball State and Indiana, and materials from Indiana.
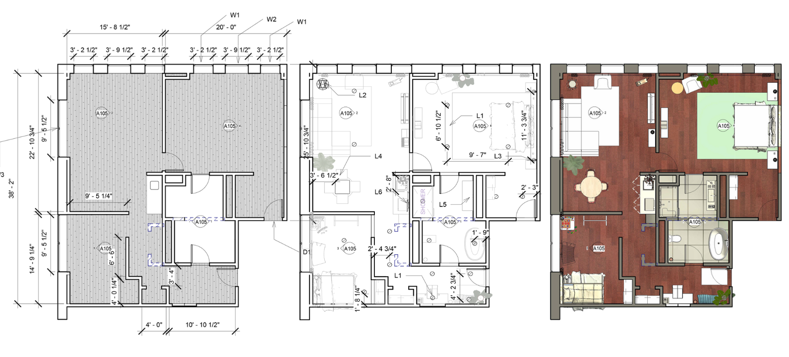
Additionally, a toy table and interactive boards were added to keep children engaged, acknowledging that kids can become restless when confined to a single space. The rooms feature custom wallpaper that highlights elements of Ball State University and Indiana, adding a personalized, local touch. In the bedroom, maple wood accents on the wall contribute to a warm, contemporary design.


In the original layout of the Suite Hotel room, a lot of space was underutilized. The design featured a large living and dining area, two small closets, two compact full bathrooms, a semi-private office, a long, empty hallway, and minimal amenities. For the remodel, I chose to add a second hotel room and redesigned the bathrooms, merging the two smaller ones into a larger, wheelchair-accessible bathroom. The bubble diagram provides a clear overview of the new layout and design changes.

Throughout the rest of the hotel, the design remains warm and welcoming, especially for children who may be adjusting to a new environment. The warm contemporary style was intentionally chosen to mimic the comfort and familiarity of a home, creating a space that feels less intimidating and more inviting. The private office is designed for guests who may need to work while on vacation. Thoughtfully tucked away from the main areas, it offers a quiet, hidden space ideal for parents needing focus time away from the activity of children or other distractions.



